Kimmel & Co Makelaars gebruikt cookies om de website naar behoren te laten werken, om functies voor social media te bieden en om onze website te analyseren. Op onze website kun je ons Cookiebeleid en Privacybeleid vinden.

Badhuisweg 203 B

2597 JP Den Haag - Westbroekpark en Duttendel

Omschrijving

Badhuisweg 203 B

Stijlvol wonen nabij zee en stad – Badhuisweg 203 B, Den Haag
Licht, luxe en locatie! Dit ruime en smaakvol gerenoveerde appartement met 2 slaapkamers aan de geliefde Badhuisweg combineert het beste van twee werelden: wonen tussen groen en duin, op een steenworp afstand van Scheveningen én het centrum van Den Haag.

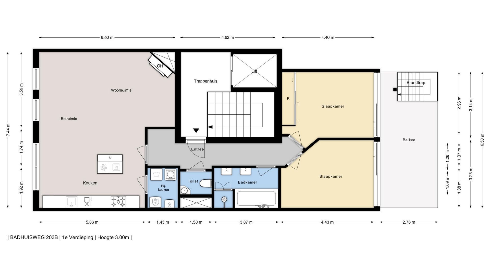
Indeling:
Via de centrale entree( mooi kleinschalig appartementencomplex ) met lift en trappenhuis bereik je het appartement op de eerste verdieping. De ruime hal geeft toegang tot de lichte woonkamer, die uitkijkt op het groen van de Badhuisweg. – ideaal om te genieten van middag- en avondzon. De open keuken is functioneel en netjes onderhouden. Verder zijn er twee ruime slaapkamers aangrenzend vind je het ruime balkon/ terras op het zuidwesten een badkamer met douche en wastafelmeubel, w.c.. In de onderbouw bevindt zich een eigen (fietsen)berging.
Plattegrond beschikbaar.

Locatie:
Een toplocatie! Je woont hier op loopafstand van het strand van Scheveningen, de duinen, het Westbroekpark én met uitstekende verbindingen naar het centrum, uitvalswegen en openbaar vervoer. Restaurants, winkels en cultuur liggen om de hoek.

Pluspunten:

-Energielabel: A+
-Gelegen op toplocatie
-Gezellige buurt met restaurants, cafés en winkels op loopafstand
-Uitstekend bereikbaar met openbaar vervoer
-Dubbel glas
-Aparte berging
-VvE actief bijdrage is € 284,03,- per maand
-Ouderdoms-, niet bewonings- en materialenclausule van toepassing

De verkoopinformatie is met grote zorgvuldigheid samengesteld, maar voor de juistheid van de inhoud kunnen wij niet instaan, en er kunnen derhalve geen rechten aan worden ontleend. De inhoud is puur informatief en mag niet worden beschouwd als een aanbod. Daar waar gesproken wordt over de inhoud, oppervlakten of afmetingen, moeten deze worden beschouwd als indicatief en circa maten. U dient als koper zelf onderzoek te verrichten naar zaken die voor u van belang zijn. Wij raden u in dat verband aan uw eigen NVM-aankoopmakelaar in te schakelen.

Specificaties

Overdracht
Vraagprijs
€ 600.000 k.k.
Status
Beschikbaar
Oplevering
In overleg
Oppervlakten en inhoud
Woonoppervlakte
92m²
Inhoud
340m³
Bouw
Soort appartement
Bovenwoning
Woonlaag
1
Soort bouw
Bestaande bouw
Bouwjaar
2007
Onderhoud binnen
Goed
Onderhoud buiten
Goed
Indeling
Aantal kamers
3
Aantal slaapkamers
2
Aantal verdiepingen
1
Voorzieningen
TV-Kabel
Energie
Energielabel
A+
Isolatie
Dubbel glas
Warm water
C.V.-ketel
Verwarming
C.V.-ketel
Ketel
HR 107 (Eigendom)
Buitenruimte
Ligging
In woonwijk
Schuur
Inpandig
Faciliteiten schuur
Voorzien van elektra
Garage

Locatie

[ { "address": "Badhuisweg 203", "zipCode": "2597 JP", "city": "Den Haag", "lat": 52.1014329, "lng": 4.3007666, "heading": 0, "pitch": 0 } ]
[ { "featureType": "all", "elementType": "labels.text.fill", "stylers": [ { "saturation": 36 }, { "color": "#333333" }, { "lightness": 40 } ] }, { "featureType": "all", "elementType": "labels.text.stroke", "stylers": [ { "visibility": "on" }, { "color": "#ffffff" }, { "lightness": 16 } ] }, { "featureType": "all", "elementType": "labels.icon", "stylers": [ { "visibility": "off" } ] }, { "featureType": "administrative", "elementType": "geometry.fill", "stylers": [ { "color": "#fefefe" }, { "lightness": 20 } ] }, { "featureType": "administrative", "elementType": "geometry.stroke", "stylers": [ { "color": "#fefefe" }, { "lightness": 17 }, { "weight": 1.2 } ] }, { "featureType": "administrative.locality", "elementType": "labels.text.fill", "stylers": [ { "color": "#dd042b" }, { "gamma": "1" } ] }, { "featureType": "landscape", "elementType": "geometry", "stylers": [ { "color": "#f5f5f5" }, { "lightness": 20 } ] }, { "featureType": "poi", "elementType": "geometry", "stylers": [ { "color": "#f5f5f5" }, { "lightness": 21 } ] }, { "featureType": "poi.park", "elementType": "geometry", "stylers": [ { "color": "#dedede" }, { "lightness": 21 } ] }, { "featureType": "road.highway", "elementType": "geometry.fill", "stylers": [ { "color": "#ffffff" }, { "lightness": 17 } ] }, { "featureType": "road.highway", "elementType": "geometry.stroke", "stylers": [ { "color": "#ffffff" }, { "lightness": 29 }, { "weight": 0.2 } ] }, { "featureType": "road.arterial", "elementType": "geometry", "stylers": [ { "color": "#ffffff" }, { "lightness": 18 } ] }, { "featureType": "road.local", "elementType": "geometry", "stylers": [ { "color": "#ffffff" }, { "lightness": 16 } ] }, { "featureType": "transit", "elementType": "geometry", "stylers": [ { "color": "#f2f2f2" }, { "lightness": 19 } ] }, { "featureType": "water", "elementType": "geometry", "stylers": [ { "color": "#e9e9e9" }, { "lightness": 17 } ] } ]

Interesse?

Uw bericht is naar ons verzonden. Wij nemen zo snel mogelijk contact met u op.

Sorry, we kunnen helaas niet met zekerheid vaststellen of u een mens of een geautomatiseerde bot/spammer bent. Hierdoor kunnen we het formulier dat u heeft ingevuld niet verzenden. Probeer het opnieuw of neem direct contact op met de makelaar via e-mail.

Er is iets mis gegaan met het versturen van het formulier.
Controleer of u alle velden (goed) heeft ingevoerd en probeer het nog een keer.

Ik ga akkoord met het Privacybeleid van Makelaarskantoor Kimmel & Co
recaptcha
reCAPTCHA
PrivacyTerms

Vergelijkbare woningen

van

Goedenavond 👋

Benieuwd naar de waarde van uw huis?

U weet het al binnen 1 minuut. Laten we beginnen!

Wat is de reden van uw aanvraag?
Ik wil graag...

Er zijn meerdere antwoorden mogelijk.

Wanneer wilt u verhuizen?

We zijn er bijna 🎉

Om het rapport op te maken hebben we een aantal gegevens nodig

recaptcha
reCAPTCHA
PrivacyTerms

Uw woningwaarde wordt berekend... 🚀

loading

Bedankt %name%! De woningwaarde van %address% is berekend 🥳

Check uw mail voor het rapport!

success
Wat is mijn huis waard?