Kimmel & Co Makelaars gebruikt cookies om de website naar behoren te laten werken, om functies voor social media te bieden en om onze website te analyseren. Op onze website kun je ons Cookiebeleid en Privacybeleid vinden.

Javastraat 83

2585 AG Den Haag - Willemspark

Omschrijving

JAVASTRAAT 83, 2585 AG DEN HAAG

Deze schitterende woning met garage is gelegen in het rustige deel van de Javastraat tegenover het groene Willemspark. Het heeft een inpandige garage en zonnig dakterras op het zuid-westen.
Op loopafstand van winkels, restaurants en openbaar vervoer. De woning is in 2007 compleet gerenoveerd met stijlvolle en luxe materialen. Parallel gelegen aan de gezellige Frederikstraat en op 5 minuten afstand van het Centraal Station.

Indeling:
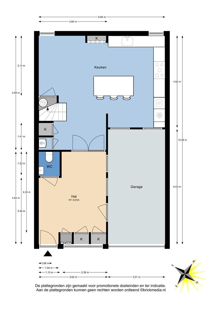
Entree waarna men de ruime hal betreed. De alarminstallatie en de meterkast bevinden zich naast de voordeur. 25 groepen en een antenneversterker geïnstalleerd. Er is vanuit deze hal een toegangsdeur naar de garage en er is ingebouwde kastruimte. De garage is voorzien van een elektrische roldeur. De gehele parterre heeft een zwart wit marmeren vloer. Toegang tot het toilet welke is betegeld met fraai natuursteen. Door de openslaande deuren komt men in de ruime luxe woonkeuken welke is voorzien van een 5 pits gasfornuis, Bauknecht vaatwasser, magnetron, afzuiger en Amerikaanse koelkast. Het kasteneiland is eveneens dienstbaar als eetbar en bied ruimte voor drie krukken. De vailliant cv-ketel is in de kast geplaatst.

Middels de open trap kom men op de hal van de 1e etage terecht waar zich eveneens een met natuursteen betegeld toilet bevindt. Ook is er een videophone geplaatst. De hal geeft door dubbele deuren toegang tot de woonkamer. Deze zeer lichte u-vormige woonkamer is voorzien van een mooie eiken visgraat parketvloer met palissander bies. De open haard van fraai zwart steen is werkend. De rechter inham van de kamer doet dienst als studeer of werkplek.

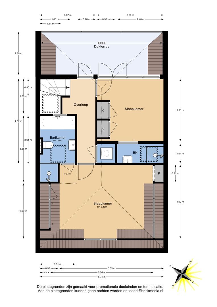
Met de trap uitkomende in de gang op de 2e etage heeft men toegang tot een kast waarin de wasmachine en droger zijn geplaatst. Ook deze etage is voorzien van een videophone. De buitendeur geeft toegang tot het zonnige dakterras welke is gelegen op het zuid-westen.
De hoofdslaapkamer is gesitueerd aan de voorzijde van de woning en heeft een eigen aangrenzende badkamer met een ligbad, douche, toilet, handdoekradiator en wastafelmeubel. Ook is er veel ingebouwde kastruimte gemaakt. De 2e en achtergelegen slaapkamer heeft openslaande deuren naar het terras en is eveneens voorzien van een eigen naast gelegen badkamer met een douche, handdoekradiator en een wastafel.

Bijzonderheden:
- Gelegen op eigen grond
- Gehele woning voorzien van dubbel glas
- Energielabel C
- Oplevering in overleg
- Materialen, ouderdoms en niet bewoond clausule worden opgenomen in de NVM koopovereenkomst

De verkoopinformatie is met grote zorgvuldigheid samengesteld, maar voor de juistheid van de inhoud kunnen wij niet instaan, en er kunnen derhalve geen rechten aan worden ontleend. De inhoud is puur informatief en mag niet worden beschouwd als een aanbod. Daar waar gesproken wordt over de inhoud, oppervlakten of afmetingen, moeten deze worden beschouwd als indicatief en circa maten. U dient als koper zelf onderzoek te verrichten naar zaken die voor u van belang zijn. Wij raden u in dat verband aan uw eigen NVM-aankoopmakelaar in te schakelen.

------------------------------------------------------------------------------------------------------------------------------------------------------------------------------------------------------------------------------------------------------------------------------------------------------------------------------------------------------------------------------------------


This beautiful house with garage is located in the quiet part of the Javastraat opposite the green Willemspark. It has an indoor garage and sunny roof terrace on the south-west.
Within walking distance of shops, restaurants and public transport. The house was completely renovated in 2007 with stylish and luxurious materials. Located parallel to the pleasant Frederikstraat and 5 minutes from Central Station.

Layout:
Entrance after which you enter the spacious hall. The alarm system and the meter cupboard are located next to the front door. 25 groups and an antenna amplifier installed. From this hall there is an access door to the garage and there is built-in cupboard space. The garage is equipped with an electric roller door. The entire ground floor has a black and white marble floor. Access to the toilet which is tiled with beautiful natural stone. Through the French doors you enter the spacious luxury kitchen which is equipped with a 5 burner gas stove, Bauknecht dishwasher, microwave, extractor and American fridge. The caste island is also used as a breakfast bar and offers space for three stools. The vailliant boiler is placed in the cupboard.

The open staircase leads to the hall of the 1st floor, where there is also a toilet tiled with natural stone. A videophone has also been installed. The hall gives access to the living room through double doors. This very bright u-shaped living room has a beautiful oak herringbone parquet floor with rosewood trim. The fireplace made of beautiful black stone is working. The right side of the room serves as a study or workplace.

With the staircase leading into the hallway on the 2nd floor you have access to a cupboard in which the washing machine and dryer are placed. This floor also has a videophone. The outside door gives access to the sunny roof terrace which is located on the south-west.
The master bedroom is located at the front of the house and has its own adjoining bathroom with a bath, shower, toilet, towel radiator and washbasin. A lot of built-in cupboard space has also been created. The 2nd and rear bedroom has French doors to the terrace and also has its own adjacent bathroom with a shower, towel radiator and a sink.

Particularities
- Own ground
- Entire house has double glazing
- Energy label C
- Delivery in consultation
- Materials, age clause and non occupied clause will be included in the NVM agreement

The sales information has been compiled with great care, but we cannot guarantee the correctness of the content, and therefore no rights can be derived from it. The content is purely informative and may not be considered an offer. Where the content, surfaces or dimensions are mentioned, these must be considered as indicative and approximate dimensions. As a buyer, you must conduct your own research into matters that are important to you. In this regard, we advise you to engage your own NVM purchasing agent.

Specificaties

Overdracht
Vraagprijs
€ 995.000 k.k.
Status
Beschikbaar
Oplevering
In overleg
Oppervlakten en inhoud
Woonoppervlakte
178m²
Perceeloppervlakte
84m²
Overig oppervlakte
18m²
Inhoud
735m³
Bouw
Soort woonhuis
Herenhuis, Tussenwoning
Soort bouw
Bestaande bouw
Bouwjaar
1906
Onderhoud binnen
Goed
Onderhoud buiten
Goed
Bijzonderheden
Beschermd stads- of dorpgezicht
Indeling
Aantal kamers
4
Aantal slaapkamers
2
Aantal badkamers
1
Aantal verdiepingen
3
Energie
Energielabel
C
Warm water
C.V.-ketel
Verwarming
C.V.-ketel
Ketel
Vaillant (2007, Combi-ketel)
Garage
Soort garage
Garagebox, Inpandig
Capaciteit
1
Voorzieningen
Voorzien van elektra

Locatie

[ { "address": "Javastraat 83", "zipCode": "2585 AG", "city": "Den Haag", "lat": 52.0889229, "lng": 4.3107303, "heading": 0, "pitch": 0 } ]
[ { "featureType": "all", "elementType": "labels.text.fill", "stylers": [ { "saturation": 36 }, { "color": "#333333" }, { "lightness": 40 } ] }, { "featureType": "all", "elementType": "labels.text.stroke", "stylers": [ { "visibility": "on" }, { "color": "#ffffff" }, { "lightness": 16 } ] }, { "featureType": "all", "elementType": "labels.icon", "stylers": [ { "visibility": "off" } ] }, { "featureType": "administrative", "elementType": "geometry.fill", "stylers": [ { "color": "#fefefe" }, { "lightness": 20 } ] }, { "featureType": "administrative", "elementType": "geometry.stroke", "stylers": [ { "color": "#fefefe" }, { "lightness": 17 }, { "weight": 1.2 } ] }, { "featureType": "administrative.locality", "elementType": "labels.text.fill", "stylers": [ { "color": "#dd042b" }, { "gamma": "1" } ] }, { "featureType": "landscape", "elementType": "geometry", "stylers": [ { "color": "#f5f5f5" }, { "lightness": 20 } ] }, { "featureType": "poi", "elementType": "geometry", "stylers": [ { "color": "#f5f5f5" }, { "lightness": 21 } ] }, { "featureType": "poi.park", "elementType": "geometry", "stylers": [ { "color": "#dedede" }, { "lightness": 21 } ] }, { "featureType": "road.highway", "elementType": "geometry.fill", "stylers": [ { "color": "#ffffff" }, { "lightness": 17 } ] }, { "featureType": "road.highway", "elementType": "geometry.stroke", "stylers": [ { "color": "#ffffff" }, { "lightness": 29 }, { "weight": 0.2 } ] }, { "featureType": "road.arterial", "elementType": "geometry", "stylers": [ { "color": "#ffffff" }, { "lightness": 18 } ] }, { "featureType": "road.local", "elementType": "geometry", "stylers": [ { "color": "#ffffff" }, { "lightness": 16 } ] }, { "featureType": "transit", "elementType": "geometry", "stylers": [ { "color": "#f2f2f2" }, { "lightness": 19 } ] }, { "featureType": "water", "elementType": "geometry", "stylers": [ { "color": "#e9e9e9" }, { "lightness": 17 } ] } ]

Interesse?

Uw bericht is naar ons verzonden. Wij nemen zo snel mogelijk contact met u op.

Sorry, we kunnen helaas niet met zekerheid vaststellen of u een mens of een geautomatiseerde bot/spammer bent. Hierdoor kunnen we het formulier dat u heeft ingevuld niet verzenden. Probeer het opnieuw of neem direct contact op met de makelaar via e-mail.

Er is iets mis gegaan met het versturen van het formulier.
Controleer of u alle velden (goed) heeft ingevoerd en probeer het nog een keer.

Ik ga akkoord met het Privacybeleid van Makelaarskantoor Kimmel & Co
recaptcha
reCAPTCHA
PrivacyTerms

Vergelijkbare woningen

Zeekant 102 C, Den Haag
€ 895.000 k.k. — € 4.500 p.m.
van

Goedenavond 👋

Benieuwd naar de waarde van uw huis?

U weet het al binnen 1 minuut. Laten we beginnen!

Wat is de reden van uw aanvraag?
Ik wil graag...

Er zijn meerdere antwoorden mogelijk.

Wanneer wilt u verhuizen?

We zijn er bijna 🎉

Om het rapport op te maken hebben we een aantal gegevens nodig

recaptcha
reCAPTCHA
PrivacyTerms

Uw woningwaarde wordt berekend... 🚀

loading

Bedankt %name%! De woningwaarde van %address% is berekend 🥳

Check uw mail voor het rapport!

success
Wat is mijn huis waard?