Kimmel & Co Makelaars gebruikt cookies om de website naar behoren te laten werken, om functies voor social media te bieden en om onze website te analyseren. Op onze website kun je ons Cookiebeleid en Privacybeleid vinden.

Kanaalweg 19 A

2584 CD Den Haag - Van Stolkpark en Scheveningse Bosjes

Omschrijving

Wonen met karakter, ruimte én uitzicht!
Kanaalweg 19A – Den Haag

Op zoek naar een uniek, royaal en sfeervol huis op een toplocatie? Stop met zoeken! Aan de charmante Kanaalweg in het gewilde Scheveningen ligt dit driedubbele bovenhuis met maar liefst 5 slaapkamers, een zonnig romantisch balkon, en een zee aan ruimte. Letterlijk én figuurlijk – de kust is namelijk op steenworp afstand!

Dit karakteristieke bovenhuis combineert stijlvol wonen met het comfort van nu. De hoge plafonds, grote raampartijen en authentieke details zorgen voor een heerlijke sfeer, terwijl de indeling perfect is voor gezinnen, thuiswerkers of liefhebbers van veel leefruimte.

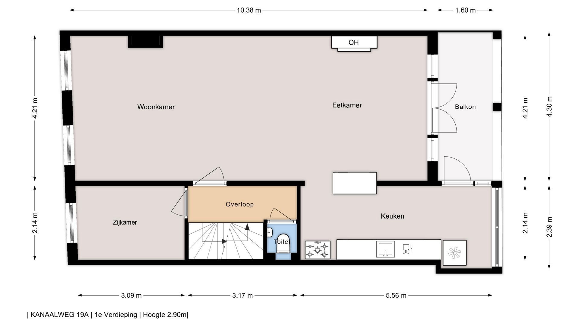
Layout:
Gezamenlijk entree , via de rechterdeur bereik je het appartement met een trap omhoog kom je in de ruime en lichte woon/ eetkamer, mooie hoge plafonds en een openhaard, deuren naar het zonnige balkon aan de achterzijde, moderne open keuken.
Studeerkamer aan de voorzijde en een w.c.
Trap naar tweede verdieping, zeer ruime hoofdslaapkamer aan de achterzijde , aparte badkamer met bad, douche en dubbele wastafel, aparte wc, ruime en lichte slaapkamer aan de voorkant en een derde kleinere slaapkamer of study.
Trap naar derde verdieping, ruime kamer/ overloop met wastafel toegang tot aparte slaapkamer.

Kenmerken van de woning:

-Woonoppervlakte van ca. 158 m2 – ruimte genoeg voor iedereen
-Maar liefst drie verdiepingen met een slimme indeling
-7 kamers waarvan slaapkamers
-Een zonnig balkon op het zuidwesten – perfect voor je ochtendkoffie of avondborrel
-Strand, haven, winkels en horeca op loopafstand
-Goed bereikbaar met OV en uitvalswegen
-Energielabel C
-Verkoper heeft de woning nooit bewoond, hiervoor zal een niet - zelfbewonersclausule in de NVM- koopakte worden opgenomen
-Plattegronden aanwezig

De verkoopinformatie is met grote zorgvuldigheid samengesteld doch voor de juistheid van de inhoud kunnen wij niet instaan en er kunnen derhalve geen rechten aan worden ontleend. De inhoud is puur informatief en mag niet worden beschouwd als een aanbod. Daar waar gesproken wordt over de inhoud, oppervlakten of afmetingen moeten deze worden beschouwd als indicatief en als circa maten. U dient als koper zelf onderzoek te verrichten naar zaken die voor u van belang zijn. Wij raden u in dat verband aan uw eigen NVM-aankoopmakelaar in te schakelen.

Voor wie?
Voor gezinnen die groots willen wonen, voor thuiswerkers die ruimte zoeken, en voor iedereen die verliefd wordt op de combinatie van stad, strand en stijl.

Zie jij jezelf hier al wonen?
Dan is dit je kans. Kom kijken, voel de ruimte en laat je verrassen door dit unieke huis aan de Kanaalweg!

Specificaties

Overdracht
Vraagprijs
€ 765.000 k.k.
Status
Beschikbaar
Oplevering
In overleg
Oppervlakten en inhoud
Woonoppervlakte
158m²
Inhoud
566m³
Bouw
Soort appartement
Bovenwoning, Appartement
Woonlaag
1
Soort bouw
Bestaande bouw
Bouwjaar
-1906
Onderhoud binnen
Goed
Onderhoud buiten
Goed
Indeling
Aantal kamers
7
Aantal slaapkamers
5
Aantal verdiepingen
3
Voorzieningen
TV-Kabel
Energie
Energielabel
C
Isolatie
Gedeeltelijk dubbel glas
Verwarming
C.V.-ketel
Buitenruimte
Ligging
In woonwijk

Locatie

[ { "address": "Kanaalweg 19", "zipCode": "2584 CD", "city": "Den Haag", "lat": 52.101817, "lng": 4.2837103, "heading": 0, "pitch": 0 } ]
[ { "featureType": "all", "elementType": "labels.text.fill", "stylers": [ { "saturation": 36 }, { "color": "#333333" }, { "lightness": 40 } ] }, { "featureType": "all", "elementType": "labels.text.stroke", "stylers": [ { "visibility": "on" }, { "color": "#ffffff" }, { "lightness": 16 } ] }, { "featureType": "all", "elementType": "labels.icon", "stylers": [ { "visibility": "off" } ] }, { "featureType": "administrative", "elementType": "geometry.fill", "stylers": [ { "color": "#fefefe" }, { "lightness": 20 } ] }, { "featureType": "administrative", "elementType": "geometry.stroke", "stylers": [ { "color": "#fefefe" }, { "lightness": 17 }, { "weight": 1.2 } ] }, { "featureType": "administrative.locality", "elementType": "labels.text.fill", "stylers": [ { "color": "#dd042b" }, { "gamma": "1" } ] }, { "featureType": "landscape", "elementType": "geometry", "stylers": [ { "color": "#f5f5f5" }, { "lightness": 20 } ] }, { "featureType": "poi", "elementType": "geometry", "stylers": [ { "color": "#f5f5f5" }, { "lightness": 21 } ] }, { "featureType": "poi.park", "elementType": "geometry", "stylers": [ { "color": "#dedede" }, { "lightness": 21 } ] }, { "featureType": "road.highway", "elementType": "geometry.fill", "stylers": [ { "color": "#ffffff" }, { "lightness": 17 } ] }, { "featureType": "road.highway", "elementType": "geometry.stroke", "stylers": [ { "color": "#ffffff" }, { "lightness": 29 }, { "weight": 0.2 } ] }, { "featureType": "road.arterial", "elementType": "geometry", "stylers": [ { "color": "#ffffff" }, { "lightness": 18 } ] }, { "featureType": "road.local", "elementType": "geometry", "stylers": [ { "color": "#ffffff" }, { "lightness": 16 } ] }, { "featureType": "transit", "elementType": "geometry", "stylers": [ { "color": "#f2f2f2" }, { "lightness": 19 } ] }, { "featureType": "water", "elementType": "geometry", "stylers": [ { "color": "#e9e9e9" }, { "lightness": 17 } ] } ]

Interesse?

Uw bericht is naar ons verzonden. Wij nemen zo snel mogelijk contact met u op.

Sorry, we kunnen helaas niet met zekerheid vaststellen of u een mens of een geautomatiseerde bot/spammer bent. Hierdoor kunnen we het formulier dat u heeft ingevuld niet verzenden. Probeer het opnieuw of neem direct contact op met de makelaar via e-mail.

Er is iets mis gegaan met het versturen van het formulier.
Controleer of u alle velden (goed) heeft ingevoerd en probeer het nog een keer.

Ik ga akkoord met het Privacybeleid van Makelaarskantoor Kimmel & Co
recaptcha
reCAPTCHA
PrivacyTerms

Vergelijkbare woningen

Edisonstraat 144, Den Haag
€ 647.000 k.k.
Zeekant 102 C, Den Haag
€ 895.000 k.k. — € 4.500 p.m.
van

Goedenavond 👋

Benieuwd naar de waarde van uw huis?

U weet het al binnen 1 minuut. Laten we beginnen!

Wat is de reden van uw aanvraag?
Ik wil graag...

Er zijn meerdere antwoorden mogelijk.

Wanneer wilt u verhuizen?

We zijn er bijna 🎉

Om het rapport op te maken hebben we een aantal gegevens nodig

recaptcha
reCAPTCHA
PrivacyTerms

Uw woningwaarde wordt berekend... 🚀

loading

Bedankt %name%! De woningwaarde van %address% is berekend 🥳

Check uw mail voor het rapport!

success
Wat is mijn huis waard?