Kimmel & Co Makelaars gebruikt cookies om de website naar behoren te laten werken, om functies voor social media te bieden en om onze website te analyseren. Op onze website kun je ons Cookiebeleid en Privacybeleid vinden.

Gevers Deynootweg 79 C

2586 BK Den Haag - Scheveningen

Omschrijving

Heerlijk licht 3-kamerappartement (ca. 89 m²) op toplocatie in Scheveningen!
Inclusief inpandige parkeerplaats achter beveiligde privé garage.
Wonen op steenworp afstand van strand, zee én natuur? Ontdek dit moderne en uitstekend onderhouden 3-kamerappartement in het verzorgde appartementencomplex ‘La Résidence’. Hier geniet je dagelijks van het ultieme vakantiegevoel — en dat gewoon in eigen huis!

Omschrijving
Dit sfeervolle appartement is van alle gemakken voorzien en beschikt over een ruime, lichte woonkamer met open keuken, twee comfortabele slaapkamers en een royaal balkon gelegen aan de voorzijde, perfect om 's middags van de zon te genieten. Daarnaast beschik je over een privéberging én eigen parkeerplaats — beide inbegrepen.

De ligging is ideaal: op loopafstand bevinden zich gezellige winkels, cafés en restaurants. Ook ben je zo in de prachtige natuurgebieden zoals de Scheveningse Bosjes, het Westbroekpark en het Hubertuspark. Voor een avondje uit liggen het Kurhaus, het Circustheater en diverse sport- en recreatievoorzieningen om de hoek. Binnen 15 minuten fietsen sta je in hartje Den Haag en ook de uitvalswegen (A12, A13) zijn goed bereikbaar.

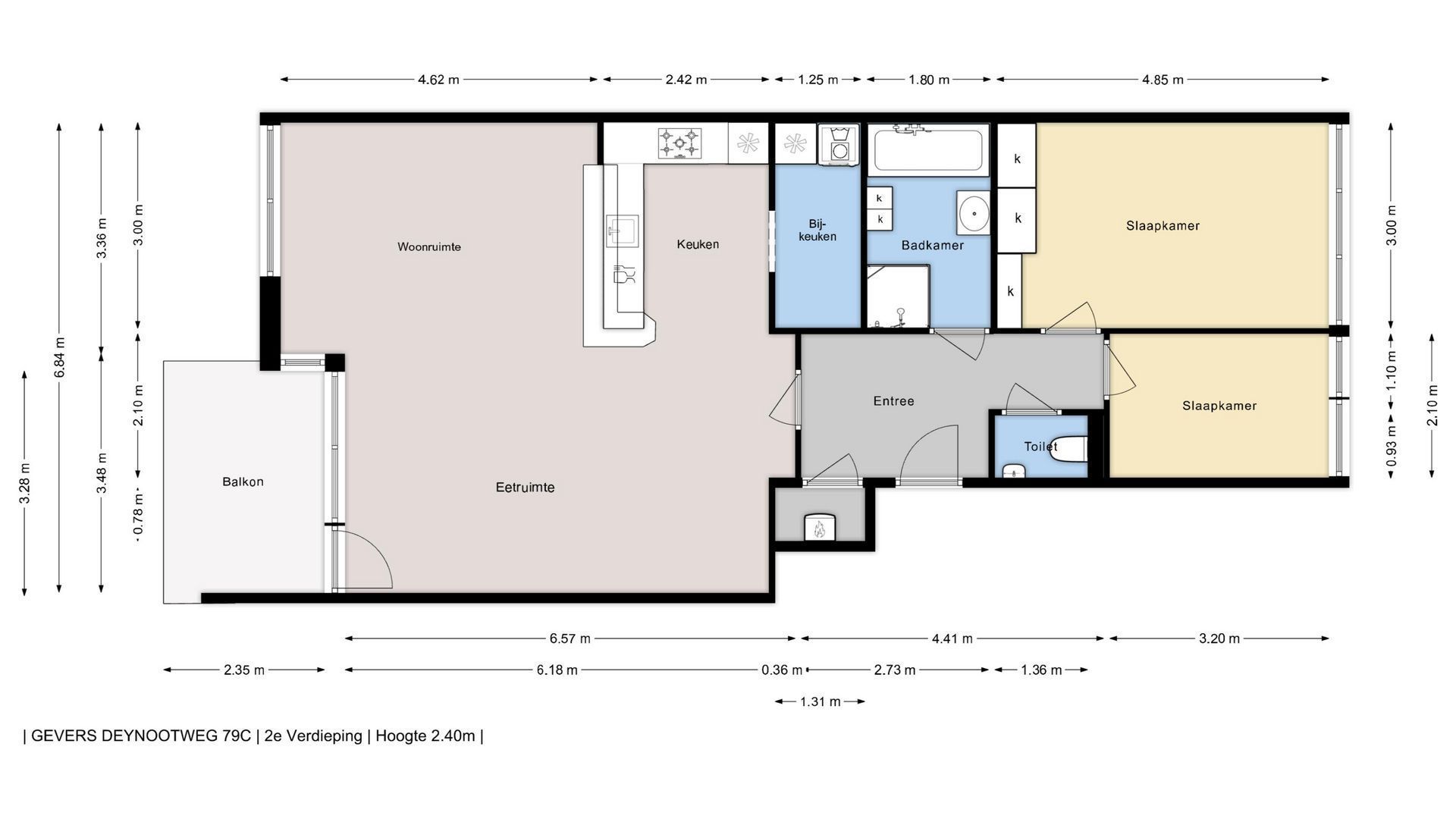
Indeling
Verzorgde centrale entree met videofooninstallatie en lift naar de tweede verdieping.

Entree met hal, separate cv-/techniekruimte en een modern betegeld toilet met fontein. De stijlvolle parketvloer loopt door naar de royale en lichte woon-/eetkamer met grote ramen en toegang tot het zonnige balkon. De open keuken is voorzien van diverse inbouwapparatuur zoals een vaatwasser, koel-/vriescombinatie, 4-pits gaskookplaat en RVS afzuigkap. Aangrenzend bevindt zich een praktische bijkeuken met aansluitingen voor wasmachine en droger.

Aan de achterzijde liggen twee ruime slaapkamers met vaste kasten en toegang tot de moderne badkamer met inloopdouche, design wastafelmeubel en handdoekradiator.

De privéberging bevindt zich op de verhoogde begane grond (“beletage”) en via een rolpoort aan de achterzijde bereik je de eigen parkeerplaats in de ondergelegen garage.

Bijzonderheden
Gelegen op eigen grond

Energielabel B
Bouwjaar 1998
Woonoppervlakte ca. 89 m²
Volledig voorzien van dubbel glas
Videophone-installatie (2016)
Lift aanwezig
Privéberging én eigen parkeerplaats
Actieve en gezonde VvE, bijdrage ca. € 238,- per maand
Oplevering per direct mogelijk

Niet-zelfbewoningsclausule en ouderdoms-/materialenclausule van toepassing

De verkoopinformatie is met grote zorgvuldigheid samengesteld, maar voor de juistheid van de inhoud kunnen wij niet instaan, en er kunnen derhalve geen rechten aan worden ontleend. De inhoud is puur informatief en mag niet worden beschouwd als een aanbod. Daar waar gesproken wordt over de inhoud, oppervlakten of afmetingen, moeten deze worden beschouwd als indicatief en circa maten. U dient als koper zelf onderzoek te verrichten naar zaken die voor u van belang zijn. Wij raden u in dat verband aan uw eigen NVM-aankoopmakelaar in te schakelen.

Specificaties

Overdracht
Vraagprijs
€ 525.000 k.k.
Status
Beschikbaar
Oplevering
In overleg
Oppervlakten en inhoud
Woonoppervlakte
89m²
Inhoud
264m³
Bouw
Soort appartement
Bovenwoning
Woonlaag
2
Soort bouw
Bestaande bouw
Bouwjaar
1998
Onderhoud binnen
Goed
Onderhoud buiten
Goed
Bijzonderheden
Beschermd stads- of dorpgezicht
Indeling
Aantal kamers
3
Aantal slaapkamers
2
Aantal verdiepingen
1
Voorzieningen
Lift, TV-Kabel
Energie
Energielabel
A
Isolatie
Dubbel glas
Verwarming
C.V.-ketel
Ketel
HR 107
Buitenruimte
Ligging
In woonwijk, Zeezicht
Schuur
Inpandig
Faciliteiten schuur
Voorzien van elektra
Garage
Soort garage
Parkeerplaats

Locatie

[ { "address": "Gevers Deynootweg 79", "zipCode": "2586 BK", "city": "Den Haag", "lat": 52.111427, "lng": 4.2817479, "heading": 0, "pitch": 0 } ]
[ { "featureType": "all", "elementType": "labels.text.fill", "stylers": [ { "saturation": 36 }, { "color": "#333333" }, { "lightness": 40 } ] }, { "featureType": "all", "elementType": "labels.text.stroke", "stylers": [ { "visibility": "on" }, { "color": "#ffffff" }, { "lightness": 16 } ] }, { "featureType": "all", "elementType": "labels.icon", "stylers": [ { "visibility": "off" } ] }, { "featureType": "administrative", "elementType": "geometry.fill", "stylers": [ { "color": "#fefefe" }, { "lightness": 20 } ] }, { "featureType": "administrative", "elementType": "geometry.stroke", "stylers": [ { "color": "#fefefe" }, { "lightness": 17 }, { "weight": 1.2 } ] }, { "featureType": "administrative.locality", "elementType": "labels.text.fill", "stylers": [ { "color": "#dd042b" }, { "gamma": "1" } ] }, { "featureType": "landscape", "elementType": "geometry", "stylers": [ { "color": "#f5f5f5" }, { "lightness": 20 } ] }, { "featureType": "poi", "elementType": "geometry", "stylers": [ { "color": "#f5f5f5" }, { "lightness": 21 } ] }, { "featureType": "poi.park", "elementType": "geometry", "stylers": [ { "color": "#dedede" }, { "lightness": 21 } ] }, { "featureType": "road.highway", "elementType": "geometry.fill", "stylers": [ { "color": "#ffffff" }, { "lightness": 17 } ] }, { "featureType": "road.highway", "elementType": "geometry.stroke", "stylers": [ { "color": "#ffffff" }, { "lightness": 29 }, { "weight": 0.2 } ] }, { "featureType": "road.arterial", "elementType": "geometry", "stylers": [ { "color": "#ffffff" }, { "lightness": 18 } ] }, { "featureType": "road.local", "elementType": "geometry", "stylers": [ { "color": "#ffffff" }, { "lightness": 16 } ] }, { "featureType": "transit", "elementType": "geometry", "stylers": [ { "color": "#f2f2f2" }, { "lightness": 19 } ] }, { "featureType": "water", "elementType": "geometry", "stylers": [ { "color": "#e9e9e9" }, { "lightness": 17 } ] } ]

Interesse?

Uw bericht is naar ons verzonden. Wij nemen zo snel mogelijk contact met u op.

Sorry, we kunnen helaas niet met zekerheid vaststellen of u een mens of een geautomatiseerde bot/spammer bent. Hierdoor kunnen we het formulier dat u heeft ingevuld niet verzenden. Probeer het opnieuw of neem direct contact op met de makelaar via e-mail.

Er is iets mis gegaan met het versturen van het formulier.
Controleer of u alle velden (goed) heeft ingevoerd en probeer het nog een keer.

Ik ga akkoord met het Privacybeleid van Makelaarskantoor Kimmel & Co
recaptcha
reCAPTCHA
PrivacyTerms

Vergelijkbare woningen

van

Goedenavond 👋

Benieuwd naar de waarde van uw huis?

U weet het al binnen 1 minuut. Laten we beginnen!

Wat is de reden van uw aanvraag?
Ik wil graag...

Er zijn meerdere antwoorden mogelijk.

Wanneer wilt u verhuizen?

We zijn er bijna 🎉

Om het rapport op te maken hebben we een aantal gegevens nodig

recaptcha
reCAPTCHA
PrivacyTerms

Uw woningwaarde wordt berekend... 🚀

loading

Bedankt %name%! De woningwaarde van %address% is berekend 🥳

Check uw mail voor het rapport!

success
Wat is mijn huis waard?