Kimmel & Co Makelaars gebruikt cookies om de website naar behoren te laten werken, om functies voor social media te bieden en om onze website te analyseren. Op onze website kun je ons Cookiebeleid en Privacybeleid vinden.

Laan van Roos en Doorn 23 C

2514 BC Den Haag - Willemspark

Omschrijving

Stijlvol wonen in het hart van Den Haag
Op zoek naar een gaaf appartement op een toplocatie? Dit moderne 2-kamerappartement op de bovenste verdieping biedt niet alleen comfort en rust, maar ook een royaal balkon met prachtig uitzicht én een privéparkeerplaats. Gelegen in het geliefde centrum van Den Haag, om de hoek van winkels, restaurants en uitstekende openbaar vervoerverbindingen.

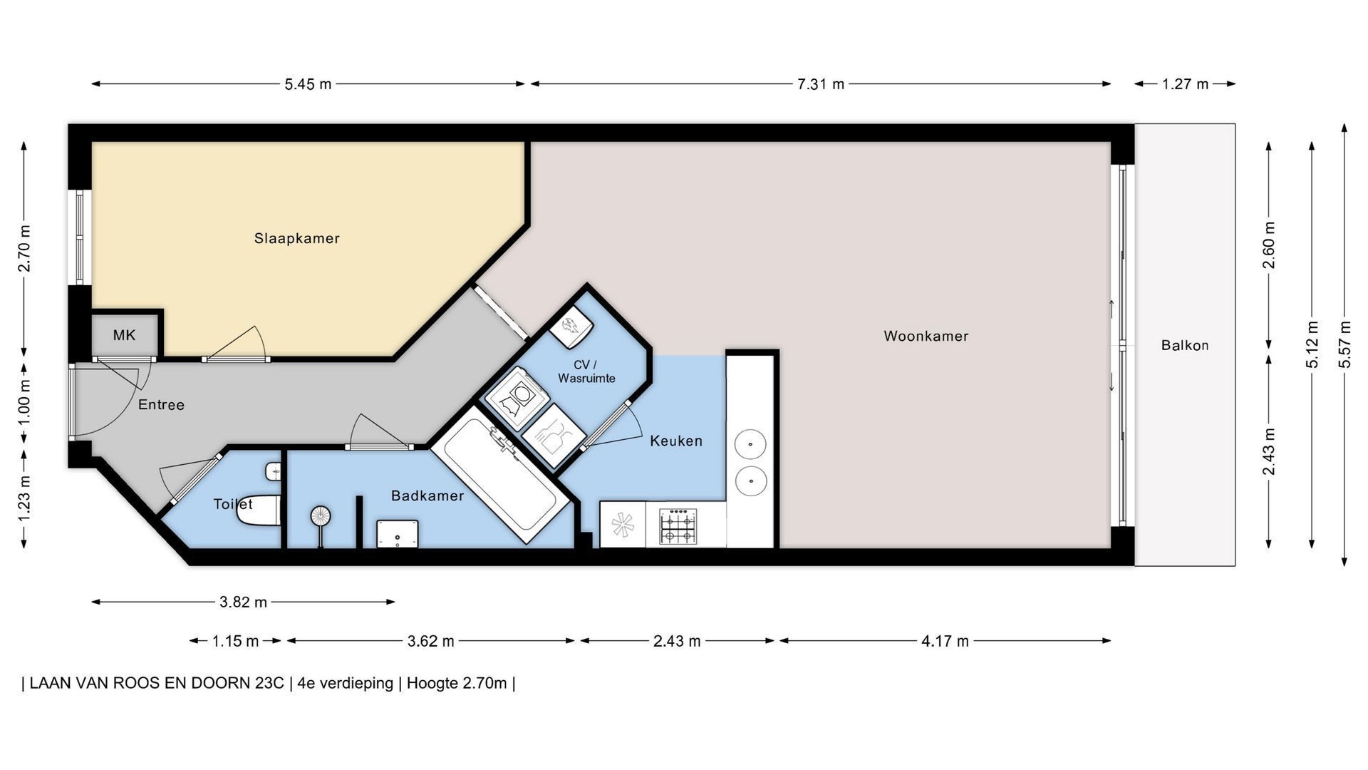
Indeling:
Entree met lift en trappenhuis.
Entree appartement, ruime slaapkamer aan de voorzijde, aparte w.c., moderne badkamer met bad, aparte douche, handdoek radiator en wastafel.
Bergruimte met CV en aansluiting voor wasmachine en droger.
Half open keuken met inbouw apparatuur.
Ruime en lichte woon-/eetkamer met openslaande deuren naar het balkon.
Groot balkon over de volledige breedte met fraai uitzicht.



Bijzonderheden:
- aparte berging en parkeerplaats in onderliggende garage
- Centrale ligging ten opzichte van de A12, A13 en A4
- Maandelijkse VvE bijdrage € 329,93
- Ouderdoms- en materialenclausules worden opgenomen in koopovereenkomst


Verkoper heeft de woning niet bewoond, hiervoor zal een niet - zelfbewonersclausule in de NVM-koopakte worden opgenomen

Dit appartement is instap klaar en perfect voor wie op zoek is naar een centraal gelegen, sfeervolle woning met alle voorzieningen binnen handbereik. Bekijk de plattegronden voor de exacte indeling en afmetingen!

De verkoopinformatie is met grote zorgvuldigheid samengesteld doch voor de juistheid van de inhoud kunnen wij niet instaan en er kunnen derhalve geen rechten aan worden ontleend. De inhoud is puur informatief en mag niet worden beschouwd als een aanbod. Daar waar gesproken wordt over de inhoud, oppervlakten of afmetingen moeten deze worden beschouwd als indicatief en als circa maten. U dient als koper zelf onderzoek te verrichten naar zaken die voor u van belang zijn. Wij raden u in dat verband aan uw eigen NVM-aankoopmakelaar in te schakelen.

Specificaties

Overdracht
Vraagprijs
€ 450.000 k.k.
Status
Beschikbaar
Oplevering
In overleg
Oppervlakten en inhoud
Woonoppervlakte
64m²
Inhoud
185m³
Bouw
Soort appartement
Bovenwoning, Appartement
Woonlaag
4
Soort bouw
Bestaande bouw
Bouwjaar
1981-1990
Onderhoud binnen
Goed
Onderhoud buiten
Goed
Indeling
Aantal kamers
2
Aantal slaapkamers
1
Aantal badkamers
1
Aantal verdiepingen
1
Voorzieningen
Lift, TV-Kabel
Energie
Energielabel
A
Warm water
Elektrische boiler eigendom
Verwarming
Stadsverwarming
Buitenruimte
Ligging
In centrum
Balkon
Ja
Tuin
Zonneterras
Zonneterras
Zuidwest, 6m², 400×160cm
Schuur
Box
Garage
Soort garage
Inpandig
Capaciteit
1

Locatie

[ { "address": "Laan van Roos en Doorn 23", "zipCode": "2514 BC", "city": "Den Haag", "lat": 52.0859356, "lng": 4.3138339, "heading": 0, "pitch": 0 } ]
[ { "featureType": "all", "elementType": "labels.text.fill", "stylers": [ { "saturation": 36 }, { "color": "#333333" }, { "lightness": 40 } ] }, { "featureType": "all", "elementType": "labels.text.stroke", "stylers": [ { "visibility": "on" }, { "color": "#ffffff" }, { "lightness": 16 } ] }, { "featureType": "all", "elementType": "labels.icon", "stylers": [ { "visibility": "off" } ] }, { "featureType": "administrative", "elementType": "geometry.fill", "stylers": [ { "color": "#fefefe" }, { "lightness": 20 } ] }, { "featureType": "administrative", "elementType": "geometry.stroke", "stylers": [ { "color": "#fefefe" }, { "lightness": 17 }, { "weight": 1.2 } ] }, { "featureType": "administrative.locality", "elementType": "labels.text.fill", "stylers": [ { "color": "#dd042b" }, { "gamma": "1" } ] }, { "featureType": "landscape", "elementType": "geometry", "stylers": [ { "color": "#f5f5f5" }, { "lightness": 20 } ] }, { "featureType": "poi", "elementType": "geometry", "stylers": [ { "color": "#f5f5f5" }, { "lightness": 21 } ] }, { "featureType": "poi.park", "elementType": "geometry", "stylers": [ { "color": "#dedede" }, { "lightness": 21 } ] }, { "featureType": "road.highway", "elementType": "geometry.fill", "stylers": [ { "color": "#ffffff" }, { "lightness": 17 } ] }, { "featureType": "road.highway", "elementType": "geometry.stroke", "stylers": [ { "color": "#ffffff" }, { "lightness": 29 }, { "weight": 0.2 } ] }, { "featureType": "road.arterial", "elementType": "geometry", "stylers": [ { "color": "#ffffff" }, { "lightness": 18 } ] }, { "featureType": "road.local", "elementType": "geometry", "stylers": [ { "color": "#ffffff" }, { "lightness": 16 } ] }, { "featureType": "transit", "elementType": "geometry", "stylers": [ { "color": "#f2f2f2" }, { "lightness": 19 } ] }, { "featureType": "water", "elementType": "geometry", "stylers": [ { "color": "#e9e9e9" }, { "lightness": 17 } ] } ]

Interesse?

Uw bericht is naar ons verzonden. Wij nemen zo snel mogelijk contact met u op.

Sorry, we kunnen helaas niet met zekerheid vaststellen of u een mens of een geautomatiseerde bot/spammer bent. Hierdoor kunnen we het formulier dat u heeft ingevuld niet verzenden. Probeer het opnieuw of neem direct contact op met de makelaar via e-mail.

Er is iets mis gegaan met het versturen van het formulier.
Controleer of u alle velden (goed) heeft ingevoerd en probeer het nog een keer.

Ik ga akkoord met het Privacybeleid van Makelaarskantoor Kimmel & Co
recaptcha
reCAPTCHA
PrivacyTerms

Vergelijkbare woningen

van

Goedenavond 👋

Benieuwd naar de waarde van uw huis?

U weet het al binnen 1 minuut. Laten we beginnen!

Wat is de reden van uw aanvraag?
Ik wil graag...

Er zijn meerdere antwoorden mogelijk.

Wanneer wilt u verhuizen?

We zijn er bijna 🎉

Om het rapport op te maken hebben we een aantal gegevens nodig

recaptcha
reCAPTCHA
PrivacyTerms

Uw woningwaarde wordt berekend... 🚀

loading

Bedankt %name%! De woningwaarde van %address% is berekend 🥳

Check uw mail voor het rapport!

success
Wat is mijn huis waard?